Casa Familiala Vânzare Gyál - Pest Megye

Vânzare Gyál Casa Familiala
138 m2Suprafaţa 4 Camere
130 000 000 HUF Preţ
394861Identificare
Mai multe detalii

887 m2 Teren

Vedere spre grădină Vedere

Proprietate nouă Stare

Caramida Structură

23 m2 Balcon/Terasă

Pompă de căldură Încălzire

Dupla komfort Confort

Garaj Propriu Parcare

Bun Transport public

Bucătarie deschisă

Existent Acces la grădină

2026 An construcție

Sud Vest Orientare

GYÁLON CSENDES ASZFALTOS UTCÁBAN
KIVÁLÓ KIVITELEZŐ, VERSENYKÉPES ÁRON, KIVÁLÓ GARÁZSKAPCSOLATOS OTTHONT AJÁNL ÖNNEK, 2026 JÚLIUSI ÁTADÁSSAL!!

Az otthon bruttó 136 négyzetméteres, nettó 104,98 négyzetméter lakóteret kínál.
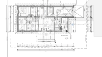
Helyiségei:előszoba 6,20 m2, folyosó 3,85 m2, háztartási helyiség 5,40 m2, szoba 10,50 m2, szoba 10,92 m2, szoba 11,40 m2, nappali 21,00 m2, konyha-étkező 9,71 m2, fürdő 6,0 m2, wc 2,0 m2, garázs 18 m2, belépő 7,38 m2, terasz 15,60 m2.


A telek melyen két otthon épül 1356 m2 területű, a hirdetett "B" jelű belső ingatlanhoz 887 m2 kizárólagos telekrész tartozik.

Az otthon beton alapra, tégla falazattal, fa födémmel, beton cserép fedéssel épül meg.
Az épület külső nyílászárói (ablakok) GEALAN márkájúak műanyag szerkezetűek 7 légkamrás 3 rétegű hőszigetelt üvegezéssel.redőnnyel szúnyoghálóval szereltek.
A bejárati biztonsági ajtó több ponton záródó.
A homlokzaton 10 cm Dryvit rendszerű, a födémben 30 cm szálas szerkezetű kőzetgyapot, míg a padlóban 10 cm lépésálló nikecell szigetelés kerül beépítésre.
Fűtése 8 Kw hőszivattyúval (levegő) történik padlófűtéssel. A H tarifa kedvező üzemeltetési költséget biztosít.
Burkolatok választhatóak keretösszegig, felette a vevő kompenzál. Szaniterek keretösszegig választhatók.
A kert alap kertrendezéssel kerül átadásra, viacolorozott autóbeállóval és személybejáróval.

Műszaki tartalom:
-hideg és melegburkolatok 5000 Ft/nm
-beltéri ajtó 60.000 Ft/db
-120 cm mosdószekrény csappal Mofém 100.000 Ft-ig
-fürdőszobában kád 80.000 Ft-ig
-hálózati vízszűrő
-1 db 2,5 kw hűtő, fűtő klíma
-1 db 3,5 kw hűtő, fűtő klíma
-1 db 8kw-os hőszivattyú
-csaptelep Mofém 15.000 Ft/db
- ARISTON okos elektromos bojler 2,4 kw 120 l
-elektromos kapu kiállások
-nappaliban mennyezeti spot lámpa világítás
-szekcionált elektromos garázskapu 2 db távirányítóval
-térkő antracit színben, járdán 100 cm széles
-gránit ablakpárkány a homlokzaton, beltéren műanyag
-riasztó rendszer kicsövezése, egy alapriasztó rendszerrel kiépítve, szobánként 1 db érzékelő, bejárati ajtón 1 db nyitás érzékelő
-áramellátás 1*32 A plusz 1*32 A H tarifa

A telken két lakóház épül, közös fal nélkül, saját használatú telekrésszel, saját mérő órákkal, ügyvédi megosztási szerződéssel.

"A" jelű utcafronti ingatlan 469 m2 telken nettó 106,77 m2 lakótérrel kulcsrakészen 130.000.000 ft
"B" jelű belső ingatlan 887 m2 telken, nettó 104,98 m2 lakótérrel kulcsrakészen 130.000.000 ft

Várom megtisztelő hívását!

FINANSZÍROZÁS:
Nálunk mindent egy helyen intézhet:
- hivatalos ingatlanközvetítés;
- szakszerű jogi képviselet;
- profi CSOK-PLUSZ, és hitelügyintézés: 16 Bank, több mint 100 konstrukció;

A részletes adatvédelmi tájékoztató folyamatosan elérhető weboldalunkon.
Korompay Rita

Korompay Rita
Agent de publicitate

Contactează-mă!

+36-20-419-Arată

Mai multe anunțuri

Agenție Imobiliară
GDN Rețea de agenții imobiliare - Völgyvidék - Etyek