Duplex Vânzare Gyál - Bartók Béla utca

Vânzare Gyál Duplex
136 m2Suprafaţa 4 Camere
126 990 000 HUF Preţ
387444Identificare
Mai multe detalii

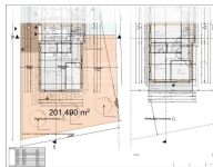
201 m2 Teren

Vedere spre grădină Vedere

Proprietate nouă Stare

Caramida Structură

10 m2 Balcon/Terasă

Pompă de căldură Încălzire

Dupla komfort Confort

Garaj Propriu Parcare

Bun Transport public

Bucătarie deschisă

Existent Acces la grădină

2026 An construcție

Eladó ikerházfél Gyál központi részén!

Gyál rendezett, belterületi környezetében kínálunk megvételre egy 136,87 m²-es ikerházfelet, amelyhez 201 m² saját telekrész tartozik.

A földszinten található a garázs, az előtér, a fürdőszoba, külön WC, a tágas nappali-étkező, valamint egy hálószoba.
Az emeleten folyosóról nyílóan helyezkedik el egy fürdőszoba és három különnyíló szoba, melyek közül az egyikből egy 10 m²-es terasz nyílik.

A ház fűtése modern hőszivattyúval történik, helyiségenként szabályozható padlófűtéssel, így minden szoba kellemes meleget biztosít. A lakás közvetlen összeköttetésben áll a garázzsal, így kényelmesen, a kert érintése nélkül közelíthető meg.

Az épület jelenleg 65%-os készültségi szinten áll, átadás 2026. január 31-én várható. Az elrendezés praktikus és családbarát, többféle élethelyzethez ideális.

A környék infrastruktúrája kiváló: boltok, iskola, óvoda és tömegközlekedés egyaránt könnyen elérhető. Nyugodt lakókörnyezet, mégis központi elhelyezkedés – itt minden adott egy kényelmes, modern otthonhoz.

Finanszírozás és jogi biztonság:
Cégünk minden jelentős hazai bankkal szerződésben áll, így ügyfeleink számára a legkedvezőbb hitel- és finanszírozási megoldásokat tudjuk biztosítani. Tapasztalt ügyvédi háttér gondoskodik a teljes jogi biztonságról és a gördülékeny ügyintézésről.
Korompay Rita

Korompay Rita
Agent de publicitate

Contactează-mă!

+36-20-419-Arată

Mai multe anunțuri

Agenție Imobiliară
GDN Rețea de agenții imobiliare - Völgyvidék - Etyek