家庭别墅 出卖 Székesfehérvár - Vezér utcáknál

出卖 Székesfehérvár 家庭别墅
75 m2面积 2 + 1 房间
61 900 000 HUF 价格
390318识别码
更多信息

681 m2 地皮

外面是园子 风景

状态好 状态

Tégla 架构

燃气(对流式) 暖气

deplin confort 舒适感

自己的车库 停车

Bun 公共交通

No 美国式厨房

有 有园子

1964 修建年

Vásárláson gondolkodik? Ne habozzon!
Használja ki az IGÉNYBE VEHETŐ lehetőségeket! Fix 3 % hitel igényelhető!
H-004679. Vezér utcák, központi részen, teljes közművel ellátott önálló, 681 m2-es sarok telken, karbantartott 76m2-es 2,5 szobás családi ház, garázzsal eladó.
A közelben orvos, iskola, óvoda, Bevásárló központok, üzletek, Ipari park, megtalálhatóak. Buszmegálló pár percre.
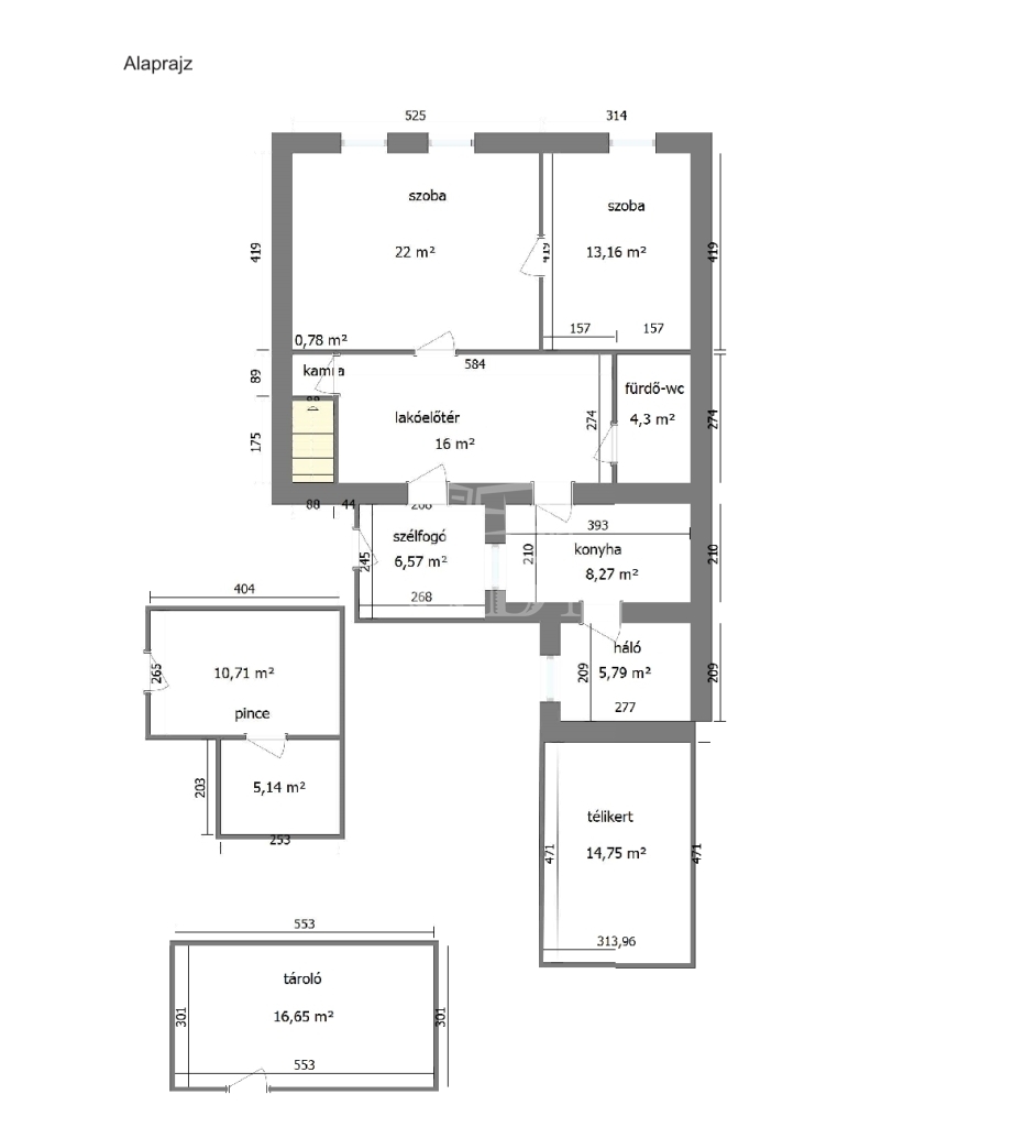
Elosztását tekintve:
A ház: kb 76 m2 hasznos alapterületű, kialakításra került egy tágas előtér, konyha ,étkező, 2,5 szoba, 1 fürdő, wc, kamra, garázs és tárolók-ólak.
Az ház 1970-es évek elején épült, beton lábazat, tégla falazattal, cserépfedéssel. A meleg vízellátásról gáz, a fűtésről gázkonvektorok valamint a nagyméretű cserépkályha gondoskodnak. A burkolatokat tekintve a szobában parketta, a közlekedőben, valamint a konyhában és a vizes helyiségekben járólap, található. A nyílászárók részben cserélve lettek műanyag típusúak, rajtuk redőny és szúnyogháló található.
A telek körbekerített, található még egy garázs, és kb 40m2 melléképület. Az ingatlan az egyik utcafrontról személyi bejárattal rendelkezik, a másik oldalon gépkocsi bejárat és a garázs. Az udvar hátsó részén gazdasági épületek gyümölcsfák és veteményes található.
Eladási irányár: 61.900.000,- Ft
A házak adottságainak, fekvésének köszönhetően alkalmas lakhatáson kívül, vállalkozásra, üzleti vagy befektetési célra, hiszen akár bérbe adható, vagy üzlet, szolgáltatás (pl: fodrász, kozmetika, irodai tevékenység….) kialakítható.
A ház a kényelmes otthont biztosít a lakók számára, mind a belső lakrészben, mind a kert, udvar, illetve a terasz területén. A vásárláshoz a jelenleg időszerű családok otthonteremtésére vonatkozó támogatás igénybe vehető (Otthon Start fix 3 % hitel , Jelzáloghitel, Babaváró, Piaci hitel……)
Ha felkeltette érdeklődését, hívjon bizalommal,(hétvégén is) éljen ingyenes, személyre szabott hitelügyintézés szolgáltatásunkkal. Segítünk továbbá adásvételhez szükséges ügyvédi közreműködésben, energetikai tanúsítvány, valamint értékbecslés elkészítésében.

For English details please send us a message or an e-mail, thank you.
Korompay Rita

Korompay Rita

随时给我们打电话

+36-20-419- 给我看

更多的广告

房产代理处
GDN 房产联盟 - Völgyvidék - Etyek