公寓房(砖头) 出卖 Siófok - Lázár Vilmos utca

出卖 Siófok 公寓房(砖头)
53 m2面积 3 房间
69 500 000 HUF 价格
387633识别码
更多信息

外面是园子 风景

新建 状态

Tégla 架构

20 m2 阳台

中央供热和自己的暖气表 暖气

deplin confort 舒适感

自己的泊车位 停车

几层 Ground floor

没有 电梯

Bun 公共交通

美国式厨房

有 有园子

2025 修建年

公关费用 20 000 HUF

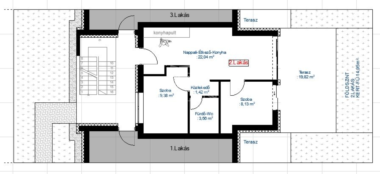
Siófok-Sóstón eladásra kínálunk dinamikusan fejlődő részén, a Balaton parthoz közel, 2025 tavaszán kezdődő 6 lakásos társasház földszintjén jó elrendezésű, nappali + két szobás 53 nm-es lakás nagy terasszal (20 nm) és kertkapcsolattal eladó, 2026. nyári átadással.

Az ingatlan tulajdonságai:
- A kivitelező megtekinthető referenciával, nemcsak a kivitelezésre fordít nagy figyelmet, de komoly hangsúlyt fektet a beépített anyagok, minőségére is.
- A lakások egyedi fűtéssel, saját mérőórákkal lesznek felszerelve, a parkosított kertben medence biztosítja a tulajdonosok kényelmét.

Ezek a feltételek valamint a kellemes környezet, a kis lakóközösség biztosítják, hogy aki itt vesz lakást, az el nem évülő értéket tudjon birtokában.

Nemcsak állandó otthonnak, nyaralásra, de befektetésnek is remek megoldás!

Ideális elhelyezkedés (vízpart közelsége, jó megközelíthetőség, családias környezet), ideális méret kedvező áron.

A lakáshoz a társasház zárt udvarán parkoló vásárolható: 3 M Ft

- Előnye még az ingatlannak, hogy egész évben kiadható a lakás, ami a vendégek számára ideális és folyamatos passzív jövedelmet biztosíthat.

Ezért is ajánlom befektetőknek, illetve családok részére, akik szeretik a Balatont!

Ne hagyja ki ezt a remek lehetőséget !

Amennyiben a veszprémi GDN Ingatlaniroda által kínált lakás, vagy bármely, a kínálatunkban található ingatlan felkeltette érdeklődését, forduljon hozzám bizalommal!

Ingatlanirodánk díjmentes, banksemleges hitelügyintézéssel, illetve ügyvédi tanácsadással is áll Ügyfeleink rendelkezésére!
Korompay Rita

Korompay Rita

随时给我们打电话

+36-20-419- 给我看

更多的广告

房产代理处
GDN 房产联盟 - Völgyvidék - Etyek