联排别墅 出卖 Maglód - Beregszász utca

出卖 Maglód 联排别墅
76 m2面积 3 房间
99 500 000 HUF 价格
395185识别码
更多信息

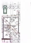
100 m2 地皮

外面是园子 风景

状态好 状态

Tégla 架构

12 m2 阳台

燃气(循环式) 暖气

deplin confort 舒适感

自己的泊车位 停车

Bun 公共交通

美国式厨房

有 有园子

2008 修建年

Délnyugat 方向

Kertkapcsolatos, igényes sorházi otthon Maglód kedvelt részén – ideális első lakásként is!

Maglód csendes, folyamatosan fejlődő részén kínálunk megvételre egy kiváló állapotú, kertkapcsolatos sorházi lakást, amely tökéletes választás lehet azok számára, akik első otthonukat keresik, de nem szeretnének kompromisszumot kötni a minőség és a komfort terén.

A 76 m²-es ingatlan átgondolt elrendezésének köszönhetően nappali + 2 külön nyíló szobával rendelkezik. A tágas, világos nappali a lakás központi tere, amely harmonikusan kapcsolódik a teraszhoz és a kerthez, így a belső és külső terek egysége valódi otthonélményt biztosít.

A lakás jó műszaki és esztétikai állapotú, gáz cirkó fűtéssel és korszerű műanyag nyílászárókkal felszerelt, ami hosszú távon is kiszámítható fenntartást tesz lehetővé.

A 12 m²-es terasz ideális helyszíne a nyugodt reggeleknek vagy az esti kikapcsolódásnak, míg a hozzá tartozó, kb. 100 m²-es privát kert tökéletes teret kínál pihenésre, kertészkedésre vagy akár baráti összejövetelekre.

Az ingatlanhoz saját gépkocsi beálló is tartozik, telken belül.

Elhelyezkedés és környezet:

A környék infrastruktúrája kiváló: a mindennapi élethez szükséges szolgáltatások – üzletek, oktatási intézmények, egészségügyi ellátás – könnyen és gyorsan elérhetők. Budapest központja autóval és tömegközlekedéssel is jól megközelíthető, így ideális választás azok számára, akik a nyugodt otthoni környezetet a városi elérhetőséggel szeretnék ötvözni.

Ez az ingatlan kiváló lehetőség mindazok számára, akik első otthonukat keresik egy élhető, nyugodt környezetben, ugyanakkor értékelik a minőségi kialakítást és a kertkapcsolat nyújtotta pluszt.

A TEHERMENTES ingatlan előre egyeztetett időpontban, kizárólag ingatlanközvetítővel megtekinthető. tp
Korompay Rita

Korompay Rita

随时给我们打电话

+36-20-419- 给我看

更多的广告

房产代理处
GDN 房产联盟 - Völgyvidék - Etyek

请给我回电话

相似的房产