Частный дом Продается Budapest XVI. mикрорайон - Gárda utca

Продается Budapest XVI. kerület Частный дом
123 m2Площадь 3 Комната
239 000 000 HUF Цена
390355Идентификация
Прочие данные

588 m2 Yчасток

С видом на сад вид

Новостройка Cостояние

Tégla Kонструкция

26 m2 балкон/терраса

Тепловой насос отопление

plným komfortom Kомфортность

Частный гараж парковка

Dobrý Общественный транспорт

Американская кухня

Есть Есть сад

2026 Год строительства

Délnyugat Расположение

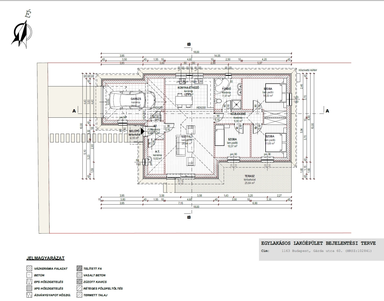
Új építésű családi ház eladó Sashalom kedvelt részén, a Gárda utca 60. szám alatt!

Budapest XVI. kerületében, egy 588 m²-es, külön helyrajzi számon nyilvántartott telken kínáljuk megvételre ezt a modern kivitelezésű, nettó 98,63 m²-es lakótérrel, 20,52 m²-es garázzsal és 25,64 m²-es terasszal rendelkező új építésű családi házat.

Az ingatlan 30-as Porotherm falazóelemből, fa födémszerkezettel épül, a homlokzaton 15 cm grafitos EPS, a padlóban 12 cm lépésálló, a vízszintes födémen pedig 30 cm kőzetgyapot szigetelés készül. A külső nyílászárók 3 rétegű üvegezéssel, kívülről fóliázva, elektromos alumínium redőnnyel és szúnyoghálóval felszerelve kerülnek beépítésre.

A fűtésről és a használati melegvízről 12 kW-os split rendszerű hőszivattyú gondoskodik 200 literes HMV tartállyal, a hűtést pedig 4 darab fan-coil biztosítja. A villamos hálózat 3×16 A, továbbá H-tarifa 3×16 A is kiépítésre kerül. Az ingatlan összesen 130 darab választható elektromos kiállással készül. A felszereltség része az elektromos kapu, az elektromos garázsajtó, a riasztórendszer, valamint a kamerarendszer előkészítése is.

A garázs igény szerint akár szobává alakítható, vagy a tartószerkezet lehetőségei miatt e-gerendás betonfödém kiépítésével akár második szint is kialakítható.

Az udvaron térkőből autóbeálló, járda, valamint az ingatlan körül is teljes térkövezett járda készül.

Választható műszaki tartalom

-Beltéri ajtók: 100.000 Ft/db-ig
-Hidegburkolatok: 10.000 Ft/m²-ig
-Melegburkolatok: 8.000 Ft/m²-ig
-Garázs burkolata: 5.000 Ft/m²-ig
-Fürdőkád: 70.000 Ft-ig
-Épített zuhany

Ez a ház ideális választás mindazoknak, akik modern, energiatakarékos otthont keresnek nyugodt környezetben.

A kivitelező számos referenciával rendelkezik, melyeket komoly érdeklődés esetén szívesen megmutatunk.

INGYENES hitel tanácsadás, CSOK Plusz ügyintézés!
BANKFÜGGETLEN hitelcentrumunk az összes elérhető bank és hitelintézet ajánlatát versenyezteti az Ön kedvéért, ráadásul DÍJMENTESEN.

- Egyedi, bankfiókban nem elérhető kamat- és díjkedvezmények
- Hitelképesség vizsgálat
- Idő, energia és pénz megtakarítás
- Teljes hivatali ügyintézés

Amennyiben hirdetésem felkeltette az érdeklődését vagy egyéb információra van szüksége hívjon bizalommal!
Korompay Rita

Korompay Rita

Звоните нам с доверием

+36-20-419- Показать

Другие объявления

Aгентств недвижимости
GDN Сеть недвижимости - Völgyvidék - Etyek