Casa Familiala Vânzare Érd - Érd Parkváros határán

Vânzare Érd Casa Familiala
105 m2Suprafaţa 4 Camere
120 000 000 HUF Preţ
394298Identificare
Mai multe detalii

1086 m2 Teren

Vedere spre grădină Vedere

În construcție Stare

Caramida Structură

35 m2 Balcon/Terasă

Pompă de căldură Încălzire

Confort 1 Confort

Parcare proprie Parcare

Mediu Transport public

Bucătarie deschisă

Existent Acces la grădină

2026 An construcție

Est Orientare

Ha eddig minden háznál hiányzott valami… itt nem fog

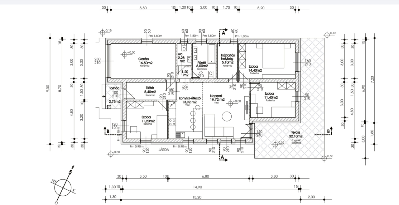
A 135 m²-es családi ház egy 1086 m²-es telken valósul meg, ahol a belső kialakítás és a kertkapcsolat egyaránt a kényelmes, hosszú távon is szerethető életet szolgálja. A keleti tájolásnak köszönhetően a nappali már reggel természetes fénnyel telik meg, a kertre néző kilátás pedig valódi nyugalmat ad a mindennapokhoz.

A 32 m²-es nappali–konyha–étkező a ház központja: tágas, jól berendezhető, közvetlen kapcsolattal a teraszhoz. A három külön nyíló szoba ideális családi elrendezést biztosít, míg a háztartási helyiség és a külön WC a praktikumot erősíti.
A fedett terasz és tornác nem csupán kiegészítő tér, valódi átmenet a belső és külső élettér között.

⚙️ Műszaki tartalom, ami kiemeli a kategóriából
- korszerű hőszivattyús rendszer
- padló-, fal- és mennyezetfűtés – egyenletes, komfortos hőérzet
- energiatakarékos melegvíz-előállítás hőszivattyúval
- “A” energetikai besorolás
- 2,8 m belmagasság – tágas, levegős terek
- modern műanyag nyílászárók, 3 rétegű üvegezéssel
- időtálló tégla szerkezet, cseréptetővel
- esővízgyűjtő rendszer

A belső kialakításnál a hangsúly a személyre szabhatóságon van: a burkolatok, ajtók és részletek egy előre meghatározott értékhatárig választhatók, így az otthon valóban a leendő tulajdonos stílusára formálható.

Kényelmi extrák:
- saját garázs közvetlen kapcsolattal
- külön háztartási helyiség
- praktikus közlekedők, jól szeparált terek
- kertre néző, privát elhelyezkedés

Ami igazán megkülönbözteti:
A nagy méretű telek ritkaság ebben a kategóriában: itt valódi életteret kapsz, ahol a kert a mindennapok aktív része.

Várható átadás: 2026
A beruházást megbízható, több referenciával rendelkező kivitelező valósítja meg, kiemelt műszaki tartalommal és magas minőségű kivitelezéssel.

Az ingatlan jelenleg építés alatt áll, így a leendő tulajdonos még több ponton személyre szabhatja az otthonát.

A várható átadás ütemezése a kivitelezés előrehaladásától és az értékesítés ütemétől függ, így részletekért kérje személyes tájékoztatásunkat.


Ez az ingatlan ideális választás azok számára, akik új építésű, energiatakarékos, hosszú távon is értékálló otthont keresnek, nagy telekkel és jól átgondolt belső struktúrával.
Korompay Rita

Korompay Rita
Agent de publicitate

Contactează-mă!

+36-20-419-Arată

Mai multe anunțuri

Agenție Imobiliară
GDN Rețea de agenții imobiliare - Völgyvidék - Etyek