Casa Familiala Vânzare Budapest XVII. Cartier - Emlék utca

Vânzare Budapest XVII. kerület Casa Familiala
159 m2Suprafaţa 5 Camere
169 990 000 HUF Preţ
390713Identificare
Mai multe detalii

641 m2 Teren

Vedere spre grădină Vedere

Proprietate nouă Stare

Caramida Structură

24 m2 Balcon/Terasă

Pompă de căldură Încălzire

Dupla komfort Confort

Parcare proprie Parcare

Bun Transport public

Bucătarie deschisă

Existent Acces la grădină

2025 An construcție

Sud Vest Orientare

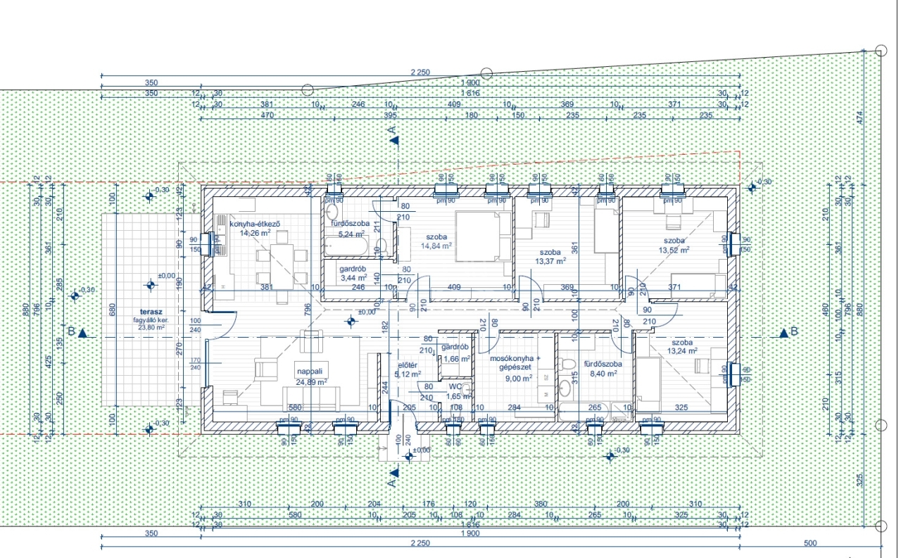
A XVII. kerület csendes, családi házas övezetében, az Emlék utca 58. szám alatt kínálom megvételre ezt a 641 m²-es telekre épülő, nettó 147 m²-es, modern és energiatakarékos új építésű családi házat, amelyhez egy 23,8 m²-es terasz is tartozik.

A kivitelezést megbízható, több sikeres referenciával rendelkező kivitelező cég végzi, az ingatlan pedig kulcsrakészen kerül átadásra.

A ház praktikus elrendezésének köszönhetően négy külön nyíló szoba és egy tágas amerikai konyhás nappali biztosítja a kényelmes mindennapokat, miközben a korszerű műszaki tartalom alacsony fenntartási költségeket garantál.

Az épület Porotherm 30-as tégla falazattal, 14 cm-es grafitos homlokzati szigeteléssel és 30 cm vastag tetőszigeteléssel készül. A fűtést és a melegvizet 12 kW-os hőszivattyú biztosítja, a teljes ingatlanban padlófűtéssel, míg a hűtést fancoil egységek látják el.

A háromrétegű fehér nyílászárók motoros redőnnyel szerelve kerülnek beépítésre.

A belső burkolatok és szaniterek választhatók:
-csempe 8.000 Ft-ig 180 cm-es magasságig, a fölött 12.000 Ft/m²
-fürdők padlóburkolata 8.000 Ft/m²-ig
-minden helyiség parkettaburkolattal, alátéttel és szegéllyel 5.000 Ft/m²-ig
-terasz burkolata 4.000 Ft/m²-ig
-szaniterek összeghatára 350.000 Ft.


Ez az ingatlan ideális választás mindazok számára, akik egy modern, praktikusan kialakított, magas műszaki tartalmú, alacsony üzemeltetési költségű, új építésű családi házra vágynak egy kiválóan megközelíthető, mégis nyugodt környéken.

INGYENES hitel tanácsadás, CSOK Plusz - Otthon Start ügyintézés!
BANKFÜGGETLEN hitelcentrumunk az összes elérhető bank és hitelintézet ajánlatát versenyezteti az Ön kedvéért, ráadásul DÍJMENTESEN.

- Egyedi, bankfiókban nem elérhető kamat- és díjkedvezmények
- Hitelképesség vizsgálat
- Idő, energia és pénz megtakarítás
- Teljes hivatali ügyintézés

Amennyiben hirdetésem felkeltette az érdeklődését vagy egyéb információra van szüksége hívjon bizalommal!
Korompay Rita

Korompay Rita
Agent de publicitate

Contactează-mă!

+36-20-419-Arată

Mai multe anunțuri

Agenție Imobiliară
GDN Rețea de agenții imobiliare - Völgyvidék - Etyek