Locuinta (caramida) Vânzare Budapest V. Cartier - Irányi utca

Vânzare Budapest V. kerület Locuinta (caramida)
68 m2Suprafaţa 3 Camere
179 000 000 HUF Preţ
395205Identificare
Mai multe detalii

Stradal Vedere

Renovat Stare

Caramida Structură

Gaz Încălzire

Dupla komfort Confort

Pe stradă, în loc public Parcare

Etaj 3

Existent Lift

Excelent Transport public

Bucătarie deschisă

Inexistent Acces la grădină

1935 An construcție

Costuri comune 15 000 HUF

Sud Est Orientare

ELADÓ FELÚJÍTOTT LAKÁS BUDAPEST BELVÁROSÁBAN, V. KERÜLET IRÁNYI UTCA!

68 nm, 3 szoba, 179 MFt.

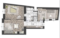
A felújított 3 szobás lakás az Erzsébet híd pesti hídfőjénél, a Váci utca és az Irányi utca közelében található. Kiváló infrastruktúra és remek közlekedés jellemző a környékre. Pár perces sétával minden elérhető ami a mindennapok kényelméhez kell, karnyújtásra van a Duna-part, több üzlet, vendéglátóhely, valamint különböző tömegközlekedési lehetőségek. A közelben iskola is található, a parkolás a kerületi lakosok számára kijelölt helyeken megoldott.

Az ingatlan egy kisebb lakásszámú, csendes társasház 3. emeletén található. A belmagasság közel 4 méter, a helyiségek tágasak, ennek köszönhetően világos és jól szellőző életteret biztosítanak.
A lakásba lépve egy tágas előtérbe lépünk, ahol beépített tárolószekrény található, innen közelíthető meg a nappali, és a gépesített, jól felszerelt konyha. A nappaliból nyílik a nagyobb hálószoba, a kisebb háló az előtérből közelíthető meg, ablakai a belső udvarra néznek. A lakás a folyosó végén helyezkedik el, így az ablakok előtt nincs átmenő forgalom.

A fürdőszobában zuhanyzó, nagyméretű kád, valamint a mosó- és szárítógép számára kialakított falfülke kapott helyet. A Fürdő és a WC külön helyiségben kapott helyet. Az egész lakás ízlésesen berendezett, és nagyon hangulatos, a tulajdonos eredetileg saját részre újította fel.
Korompay Rita

Korompay Rita
Agent de publicitate

Contactează-mă!

+36-20-419-Arată

Mai multe anunțuri

Agenție Imobiliară
GDN Rețea de agenții imobiliare - Völgyvidék - Etyek