Ikerház Eladó Ercsi - Ercsi Duna-part közelében

Eladó Ercsi Ikerház
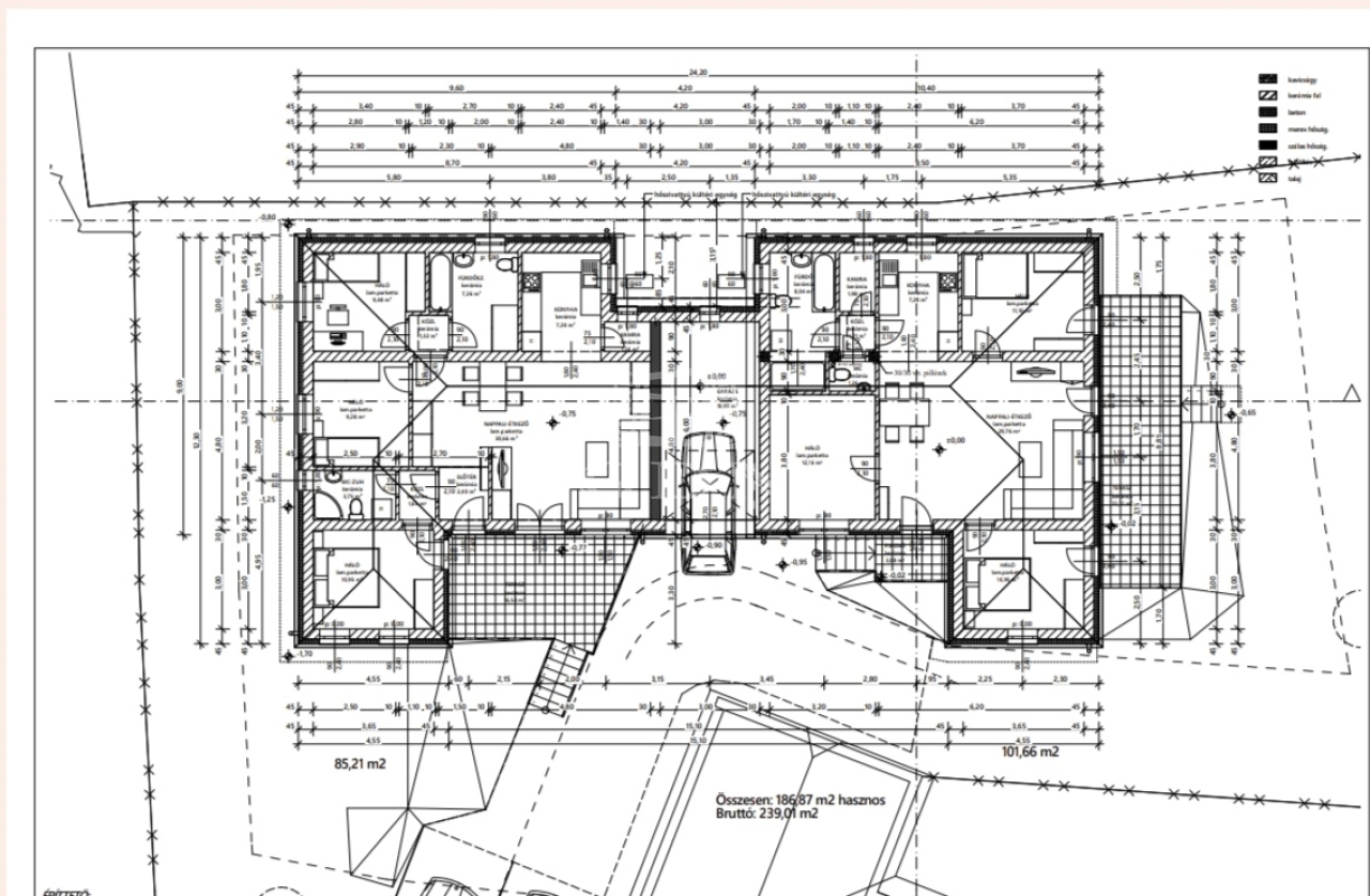
85 m2Alapterület 4 Szoba
65 000 000 Ft Ár
Hitelkalkuláció folyamatban... Loading
394312Azonosító
További adatok

860 m2 Telek

Kertre néző Kilátás

Építés alatt Állapot

Tégla Szerkezet

22 m2 Erkély/terasz

Hőszivattyú Fűtés

Összkomfort Komfort

Saját garázs Parkolás

Közepes Tömegközlekedés

Amerikai konyhás

Van Kertkapcsolat

2026 Építés éve

Déli Tájolás

Lakóterek, ahol minden sarok beszél

Ez a 85 m²-es lakás nem pusztán otthon, hanem tudatosan megtervezett élettér. A nappali–étkező központú kialakítás köré három külön nyíló hálószoba szerveződik, így a privát szféra és a közös terek tökéletes egyensúlyban vannak. A délnyugati tájolás egész napos fényt biztosít, a terasz pedig folytatása a belső térnek – kültéri nappaliként, reggeli kávétól az esti beszélgetésekig.

Terasz-terápia
A 22 m²-es terasz közvetlen kapcsolatban áll a kerttel. Itt a természet nem háttér, hanem a mindennapok részévé válik.

Saját garázs, saját rend
A saját garázs kényelmes parkolást és extra tárolóhelyet ad, így minden a praktikumot és a kényelmet szolgálja.

Energia, ami mosolyra késztet
A lakás korszerű hőszivattyús padlófűtéssel rendelkezik, az energiatakarékos melegvíz-ellátás minimálisra csökkenti a fenntartási költségeket, a precíz szigetelés és a 3 rétegű üvegezésű műanyag nyílászárók a komfortot szolgálják, a 2,7 m belmagasság pedig tágas, levegős tereket eredményez. Az önálló mérőórák teljesen leválasztott használatot biztosítanak.

Apró részletek, nagy különbség
A nappali és a hálószobák jól szeparáltak, a közlekedők praktikusak, a terasz a belső tér természetes folytatása. Minden részlet a hétköznapok kényelmét szolgálja, miközben a terek arányai és funkcionalitása rendkívül átgondolt.

Mi teszi különlegessé ezt az otthont?
- Ikerház jelleg, mégis teljesen elkülönített életterek
- Kizárólagos kerthasználat, ahol a kültér valóban része az életnek
- Modern, energiatakarékos megoldások, amelyek hosszú távon is megtérülnek
- Nyugodt, rendezett környezet, ami pihenést és feltöltődést ad

Várható átadás: 2026.
A projektet egy tapasztalt, több sikeres munkával rendelkező kivitelező viszi végig, magas minőségben.

Mivel az ingatlan még épül, most van itt az ideje, hogy beleszólj a részletekbe, és valóban a sajátodra formáld.

Az átadás várható ideje a kivitelezés ütemétől függ – aktuális információkért keress bizalommal.

Ha család, barátok vagy csak a saját nyugalmod a tét, itt minden szobában jut hely a nevetésnek.Ez az otthon nem csak falakból áll, hanem lehetőségekből, ahol minden pillanatra jut egy kis varázslat.
Korompay Rita

Korompay Rita

Hívjon bizalommal

+36-20-419-Mutasd!

További hirdetéseim

Ingatlaniroda
GDN Ingatlanhálózat - Völgyvidék - Etyek