Lakás (téglaépítésű) Eladó Budapest XI. kerület - Beregszász út

Eladó Budapest XI. kerület Lakás (téglaépítésű)
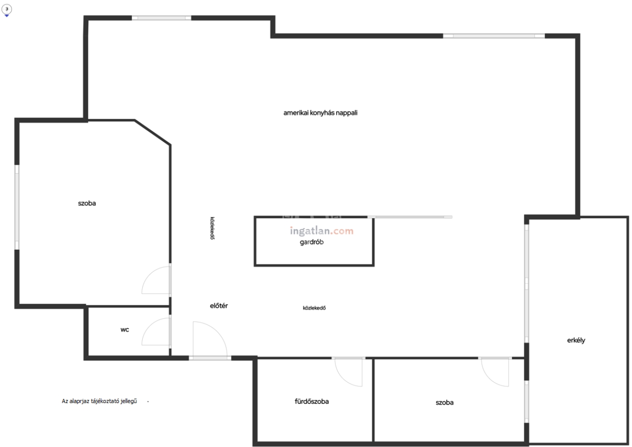
74 m2Alapterület 2 + 2 Szoba
139 000 000 Ft Ár
Hitelkalkuláció folyamatban... Loading
395146Azonosító
További adatok

Kertre néző Kilátás

Újszerű Állapot

Tégla Szerkezet

Gáz (cirkó) Fűtés

Összkomfort Komfort

Utcán, közterületen Parkolás

Emelet 3

Legfelső emelet

Nincs Lift

Tömegközlekedés

Amerikai konyhás

Nincs Kertkapcsolat

Tetőtéri ingatlan

2001 Építés éve

Közös költség 30 000 Ft

Déli Tájolás

XI. kerület Sasad felső részén nyaralhat saját lakásában már idén nyáron!

PANORÁMÁS tetőtéri, 74 nm-es lakás amerikai konyhás nappalival és 2 hálószobával (egyik szoba jelenleg 2 kisebbé alakítva).
3627 nm-es ősfás telken
Déli tájolású 14 nm-es erkély .
Nap minden szakában fényes.
Gépesített konyha.
Beépített bútorok.
Tömegközlekedés 5-10 perc sétával (53, 108, 139 buszok) elérhető.
Parkolás a ház előtt ingyenes.

A ház kertjében gyermek játszó és MEDENCE található, valamint egy SZAUNA.

A lakást fiataloknak és kisgyermekeseknek ajánlom leendő otthonuknak. (Lift a házban nincs.)

Ezt az ingatlant látni kell, mert a leírás úgysem adja át a hangulatát. :-)

Amennyiben nem rendelkezik a teljes vételárral, segítünk megtalálni a legmegfelelőbb finanszírozási formát.

További kérdés esetén várom hívását!
Korompay Rita

Korompay Rita

Hívjon bizalommal

+36-20-419-Mutasd!

További hirdetéseim

Ingatlaniroda
GDN Ingatlanhálózat - Völgyvidék - Etyek