Lakás (téglaépítésű) Eladó Budapest VIII. kerület - Kálvária tér

Eladó Budapest VIII. kerület Lakás (téglaépítésű)
58 m2Alapterület 1 Szoba
283 836 €(~ 104 153 620 Ft)
Hitelkalkuláció folyamatban... Loading
393991Azonosító
További adatok

Utcai Kilátás

Új Állapot

Tégla Szerkezet

4 m2 Erkély/terasz

Hőszivattyú Fűtés

Összkomfort Komfort

Garázs/beálló vásárolható Parkolás

Emelet 2

Van Lift

Kiváló Tömegközlekedés

Amerikai konyhás

Nincs Kertkapcsolat

2026 Építés éve

Délkeleti Tájolás

PANORÁMÁS, A+ ENERGIAHATÉKONYSÁGÚ ÚJ ÉPÍTÉSŰ LAKÁS A MEGÚJULÓ KÁLVÁRIA TÉRNÉL!!!

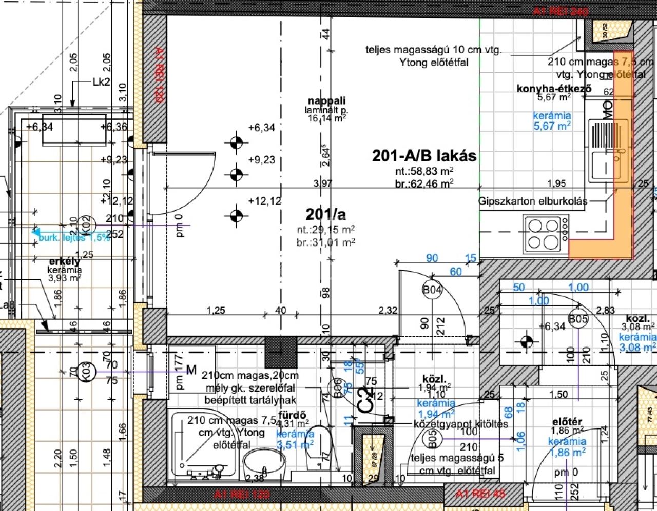
Eladó egy 2026-os átadású, 58 négyzetméteres, 2. emeleti téglalakás a VIII. kerület egyik leggyorsabban fejlődő részén. Az ingatlan kiváló elosztással, modern technológiával és egy 4 négyzetméteres erkéllyel rendelkezik, amely a rendezett környezetre néz. A legkorszerűbb hőszivattyús hűtés-fűtési rendszer garantálja a rendkívül alacsony rezsiköltséget és a maximális komfortot.

AZ INGATLAN JELLEMZŐI:

A lakás belső kialakítása praktikus és otthonos: a hálószobák mellett egy világos, amerikai konyhás nappali található. A kényelmet duplakomfort (két fürdőszoba és külön WC) biztosítja, ami ritka előny ekkora alapterületen.

Műszaki tartalom:

- Energetikai besorolás: A+ (kiemelkedően hatékony)
- Fűtés és hűtés: Levegő-víz hőszivattyú, lakásonként egyedi Panasonic fan-coil hőleadókkal.
- Szigetelés: 20 cm-es homlokzati szigetelés.
- Egyedi mérőórák és kedvezményes H-tarifa az áramfogyasztáshoz.

KÖRNYÉK ÉS LOKÁCIÓ:

A Kálvária tér rehabilitált környezete Budapest egyik legkeresettebb befektetési célpontja. Az egyetemek (NKE, Semmelweis, Pázmány, Óbudai Egyetem) sétatávolságra találhatók, így az ingatlan kiváló választás saját otthonnak vagy magas hozamú befektetésnek is.

Közlekedés:
A belváros percek alatt elérhető a 4-es metróval (Rákóczi tér), a 4-6-os villamossal, valamint számos busz- és trolijárattal.

EXTRÁK ÉS LEHETŐSÉGEK
A lakáshoz a teremgarázsban saját parkolóhely vásárolható 10 millió forintos áron. Az ingatlan modern berendezéssel, 2026. áprilisi átadással kerül birtokba.

Várom megtisztelő hívását a részletes műszaki dokumentációval és a megtekintéssel kapcsolatban. tp
Korompay Rita

Korompay Rita

Hívjon bizalommal

+36-20-419-Mutasd!

További hirdetéseim

Ingatlaniroda
GDN Ingatlanhálózat - Völgyvidék - Etyek