Flat (panel) For sale Százhalombatta - Százhalombatta Déli lakótelep

For sale Százhalombatta Flat (panel)
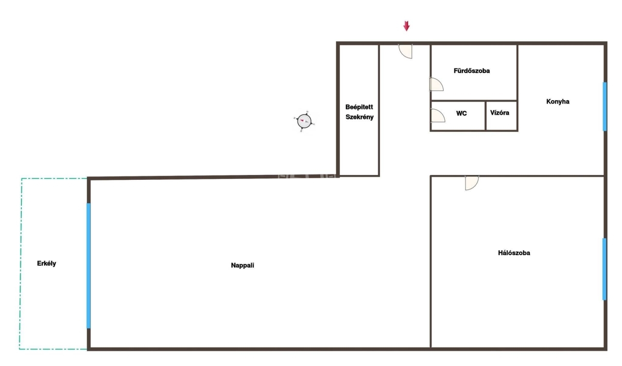
50 m2Space 2 Rooms
59 900 000 HUF Price
394394ID number
Other data

Street View

Reconditioned Condition

Panel Structure

4 m2 Balcony/terrace

District heating Heating

Full comfort Comfort

At community areas Parking

Floor 4

Top floor

No exist Elevator

Excellent Public transport

No American kitchen

No exist Access to the garden

1981 Year of construction

Common cost 13 000 HUF

Southwest Orientation

Lakás? Megvan. Nyugalom? Megvan. Napfény? Megvan. Csak a kanapéd hiányzik, és az is hamarosan meglesz.

Százhalombatta Déli lakótelepén eladó egy 4. emeleti, két külön nyíló szobás, 50 m²-es, erkélyes lakás, ami kész a beköltözésre.

Dél-nyugati tájolás miatt a nap minden délután ráveti a fényét a falakra, és szinte be is költözik a nappaliba. A nyílászárók műanyagok, a nyári hőségben pedig hűtő-fűtő klíma gondoskodik a komfortról.
A lakás a panelprogram keretében felújított, ami nem csak stabil hőkomfortot, hanem alacsony rezsiköltséget is biztosít.

Saját tárolónak köszönhetően biciklit, bőröndöt vagy bármilyen apróságot el tudsz pakolni, így nem kell a lakásban kerülgetned semmit.

Dupla garázs bérleti joga a lépcsőház mellett: autód VIP helyen parkol, neked nyugalom. A garázs havi díja 55.000 Ft.

A lakás minden részlete praktikus és élhető:
- Ablakos konyha, ahol a fény játéka új energiát ad.
- Frissen festett falak, új parketta, a lakás belső tere tiszta, modern és világos.
- Fürdőszoba és WC frissen felújítva, ízléses és higiénikus.

Környék, ami egyszerűsíti az életet: buszmegálló 2 perc, vasútállomás 10 perc séta, boltok, bevásárlóközpont, iskola, óvoda és játszótér minden lépésnél kéznél.

Kiknek ajánljuk?
Fiatal pároknak, akiknek a hétköznapokhoz kell egy kis napsütés és zöld; kisgyermekes családoknak, akiknek a praktikum és a tárolási lehetőség is számít; befektetőknek, akik szeretik, ha a lakás önmagát adja el, itt mindenki megtalálja a helyét.
Korompay Rita

Korompay Rita
Advertiser

Call me with confidence

+36-20-419-Show!

Other listings

Real Estate Agency
GDN Real Estate Network - Völgyvidék - Etyek