Family House For sale Dunaharaszti - Petőfitelep

For sale Dunaharaszti Family House
205 m2Space 6 Rooms
180 000 000 HUF Price
392986ID number
Other data

566 m2 Building lot

Garden view View

Newly built Condition

Brick Structure

22 m2 Balcony/terrace

Gas (circulating) Heating

Double comfort Comfort

Own garage Parking

Good Public transport

American kitchen

Exist Access to the garden

2026 Year of construction

Dunaharasztiban új építésű önálló családi ház, 2026-os átadással eladó.

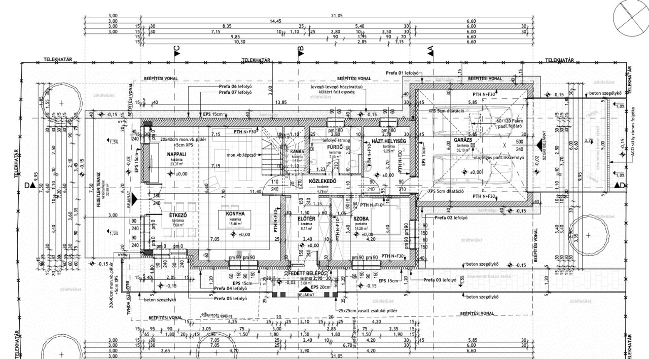
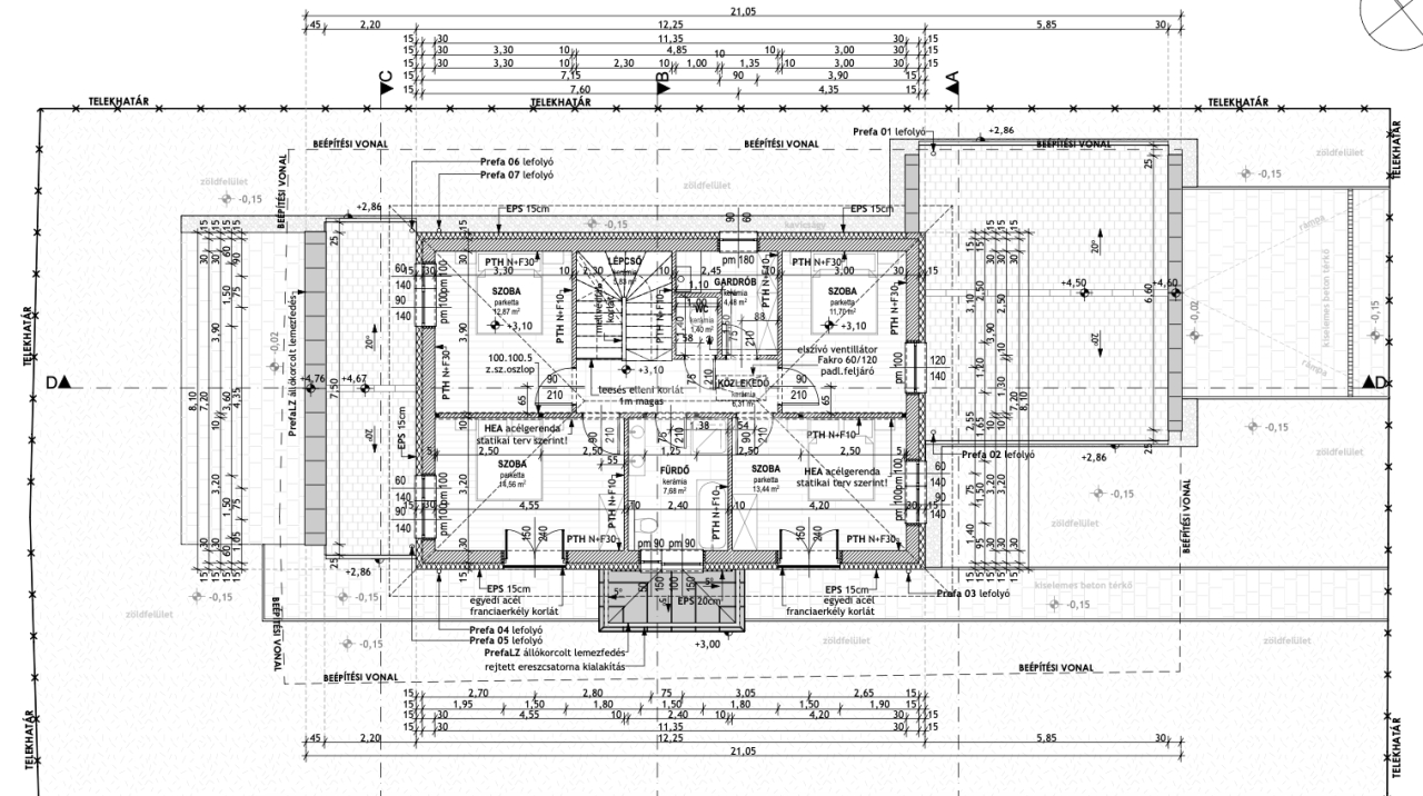
Petőfi-liget városrészén a Bezerédi lakópark közelében, 566 nm-es telken, két szintes 5 hálószobás két fürdős, dupla garázzsal rendelkező ingatlan várja új tulajdonosát.

A modern kialakítású energiahatékony épület belső terei még igény szerint módosíthatóak, az építkezés ezen szakaszában.
A kivitelező referencia munkái megtekinthetőek.

Főbb paraméterek:
- nettó alapterület: 205m2 (169,83+35,10 garázs),
- 566 m2 telek,
- földszinten amerikai konyhás nappali, egy szoba, kamra, fürdőszoba, háztartási helyiség, dupla garázs,
- emeleten négy hálószoba, fürdőszoba, külön Wc, gardrób.

Műszaki paraméterek:
- 30-as kerámia főfalak, 10 cm Ytong válaszfal,
- főfal 15 cm EPS, aljzatban 12 cm, födémen 25 cm szigetelés
- járda az épület körül, kocsibeálló a telken,
- 3 x 16 A,
- 3,2 KW napelem – alacsony rezsiköltségek,
- 2 állásos garázs, szankcionált automata kapuval,
- 3 rétegű 6 légkamrás műanyag nyílászárókkal redőnnyel, szúnyoghálóval,
- fűtés és melegvízellátás kondenzációs gázkazánról vagy hőszivattyúval,
- padlófűtés és radiátoros hőleadók,
- hűtő-fűtő klíma előkészítés,
- riasztórendszer, kaputelefon előkészítés,
- mészkőpárkányok,
- burkolatok 6000Ft/m2-ig a vételárban.

Várom szíves hívását!
Korompay Rita

Korompay Rita
Advertiser

Call me with confidence

+36-20-419-Show!

Other listings

Real Estate Agency
GDN Real Estate Network - Völgyvidék - Etyek