Family House For sale Budapest XVIII. district - Poprád utca

For sale Budapest XVIII. kerület Family House
230 m2Space 3 Rooms
119 800 000 HUF Price
393578ID number
Other data

433 m2 Building lot

Garden view View

In good condition Condition

Brick Structure

5 m2 Balcony/terrace

Gas (circulating) Heating

Full comfort Comfort

Own garage Parking

Good Public transport

No American kitchen

Exist Access to the garden

1995 Year of construction

Southeast Orientation

Eladó háromszintes önálló családi ház 18.kerületben.

Budapest 18.kerület Ferihegy városrészben kínálunk megvételre egy nettó 230 nm-es, háromszintes,téglából épült, önálló családi házat
433 nm-es telken.
A telken található még, egy különálló garázs.
A nyílászárók háromrétegű üvegezésű a jobb hangszigetelés érdekében.
A fűtést gáz cirkó biztosítja radiátoros hőleadással.

Az ingatlan beosztása-
földszint:
- előszoba 7nm,
- nappali 23,1nm,
- konyha 7,5nm,
- étkező 15,9nm,
- kamra 2,3nm,
- fürdőszoba 5,2nm,
- WC 2,2nm,
---------------------------
nettó: 63,2nm

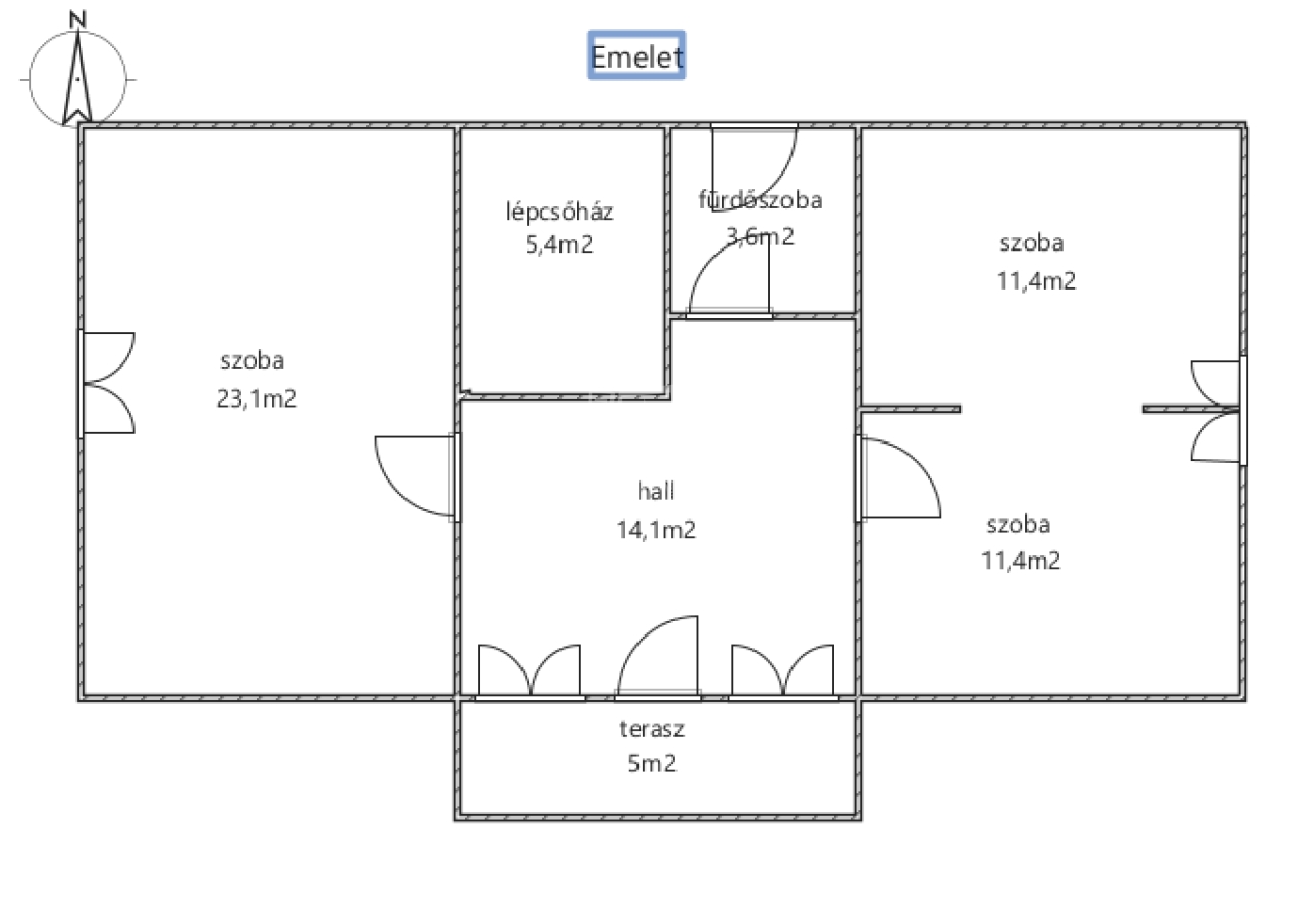
Emelet:
- lépcsőház 5,4nm,
- hall 14,1nm,
- fürdőszoba+WC 3,6nm,
- szoba 23,1nm,
- szoba 11,4nm,
- szoba 11,4nm,
- terasz 5nm,
-----------------------------
nettó:74nm

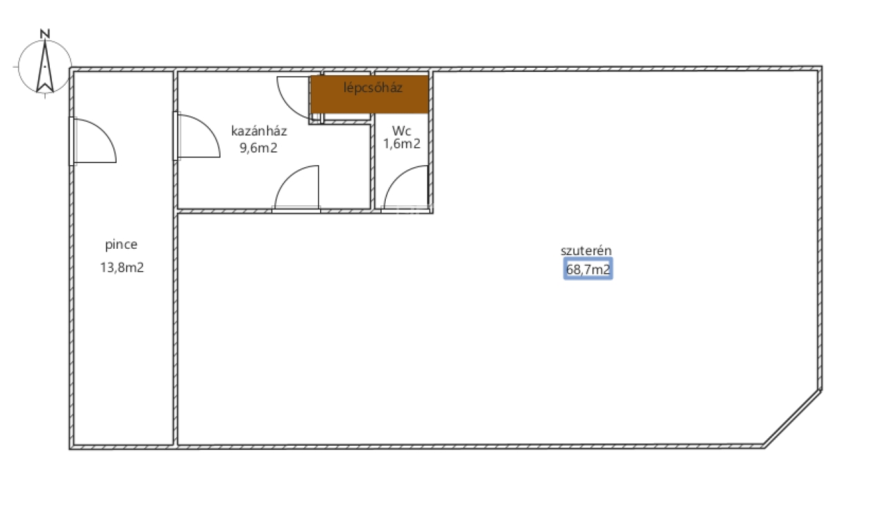
Szuterén:
- kazánház 9,6nm,
- tároló 13,8nm,
- WC,mosdó 1,6nm,
- "dühöngő"szabadidőszoba 68,7nm,
------------------------------
nettó: 93,7nm

Vonat, busz megálló a közelben. Szemere István téri játszótér sétatávolságra található.

Amivel segítjük az Ön ingatlanvásárlását:
- ingyenes hitelügyintézés,
- jogi háttér,
- földhivatali ügyintézés,
- energetikai tanúsítvány,
- a vevő számára az ingatlanközvetítés ingyenes.

Irodánk 30 éves szakmai tapasztalattal áll ügyfelei rendelkezésére!

Várom szíves megkeresését!
Korompay Rita

Korompay Rita
Advertiser

Call me with confidence

+36-20-419-Show!

Other listings

Real Estate Agency
GDN Real Estate Network - Völgyvidék - Etyek