Family House For sale Hévízgyörk - Csendes utcában

For sale Hévízgyörk Family House
254 m2Space 6 Rooms
99 000 000 HUF Price
390870ID number
Other data

781 m2 Building lot

Courtyard View

In good condition Condition

Brick Structure

24 m2 Balcony/terrace

Electric Heating

Double comfort Comfort

Own garage Parking

Good Public transport

American kitchen

Exist Access to the garden

2000 Year of construction

Southwest Orientation

Eladó szépen karbantartott villa jellegű ingatlan, kivételes adottságokkal

Megvételre kínálok egy 2000-ben téglából épült, folyamatosan karbantartott és korszerűsített, valódi villa karakterrel rendelkező ingatlant, költözés miatt.

Az épület 2021 óta átfogó megújításon esett át, melynek során a tulajdonos kiemelt figyelmet fordított a gépészetre, a fűtési rendszer korszerűsítésére, festésekre és az elektromos hálózat fejlesztésére.

A fűtés és hűtés 10 darab, modern, wifis klímával megoldott, a melegvízellátást új Ariston villanybojler biztosítja. Az ingatlan 3×16A elektromos betáplálással rendelkezik.

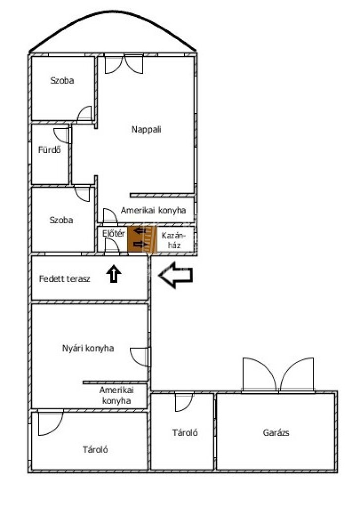
Főépület:

Két szint

Szintenként kb. 127 m², összesen 254 m² lakótér

Alsó szint:

- nagyméretű amerikai konyhás nappali

- hálószoba

- gyerekszoba

- fürdőszoba

- kamra


Felső szint:

- dolgozószobák

- vendégszoba

- gardrób

- külön WC és zuhanyzó

- mozihelyiség motoros vetítővászonnal



Az ingatlan belső és külső tereit eredeti, kézzel kidolgozott gipszstukkók, klasszikus oszlopos megoldások és íves nyílászárók teszik különlegessé, amely valódi villa megjelenést biztosít.

Telek és további épületek:

- 781 m² saját telek

- 85 m²-es különálló hátsó épület (felújítandó, bővíthető)

- 50 m²-es 2 állásos garázs, amelyből további lakótér is leválasztható

Többgenerációs együttélés vagy akár 3 különálló lakóegység kialakítása is lehetséges, adott esetben pedig társasházzá is alakítható!


Az utcafronton kényelmes parkolási lehetőség áll rendelkezésre, akár 4 autó számára is.


INGYENES hitel tanácsadás!
CSOK Ügy intézés!
3% -os OSP hitel ügyintézés!

BANKFÜGGETLEN hitelcentrumunk minden elérhető bank és hitelintézet ajánlatát versenyezteti az Ön kedvéért, ráadásul DÍJMENTESEN.
Önnek nincs más dolga, mint elbeszélgetni munkatársunkkal, aki a hallott információk alapján versenyre hívja a bankokat, hogy Ön hosszú távon is a legjobb konstrukciót kaphassa. A legjobb ajánlatokból végül Ön választhatja ki a nyertest.
Munkatársaink sokéves szakmai tapasztalattal várják Önt, előre egyeztetve akár a normál munkaidő után is.

Amennyiben hirdetésem felkeltette érdeklődését, várom hívását, akár hétvégén is! S.S.
Korompay Rita

Korompay Rita
Advertiser

Call me with confidence

+36-20-419-Show!

Other listings

Real Estate Agency
GDN Real Estate Network - Völgyvidék - Etyek

Call me back

Similar properties