Einfamilienhaus Verkauf Ács - Dózsa György utca

Verkauf Ács Einfamilienhaus
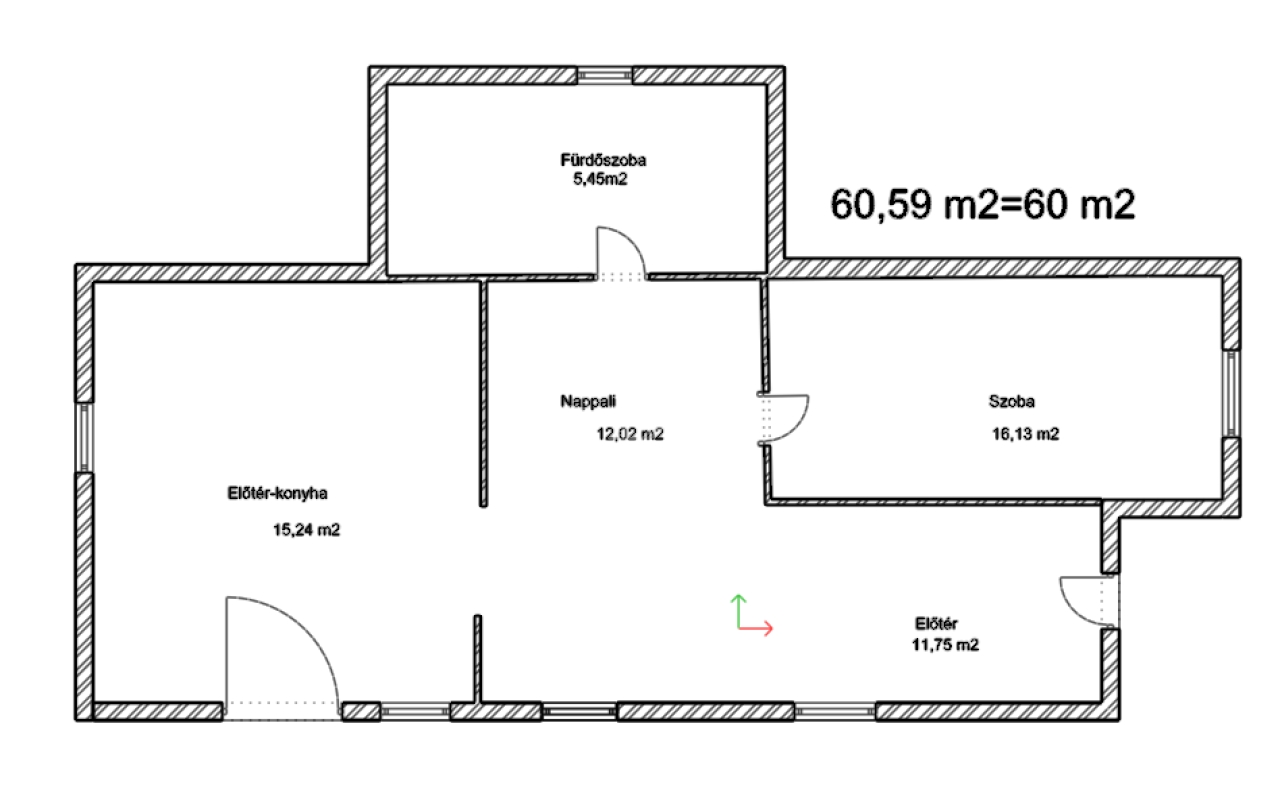
60 m2Wohnfläche 2 Zimmer
37 000 000 HUF Kaufpreis
394100ID nummer
Weitere Informationen

1288 m2 Grundstück

Straße Ansicht

In befriedigendem Zustand Zustand

Tégla Struktur

Gas (Konvektor) Heizung

Komfort Komfort

Auf Gemeindeflächen Parkplatz

Gut Öffentliche Verkehrsmittel

Nein Amerikanische Küche

Es gibt Zugang zum garten

1969 Baujahr

Eladó hangulatos családi ház Ács csendes utcájában.

Eladásra kínálunk egy közepes állapotú családi házat Ács csendes részén, a Dózsa György utcában.

A 60 m²-es ingatlan két szobával rendelkezik, ideális lehet kisebb családok vagy párok számára.

A felépítmény 1960-as években téglából épült, alappal rendelkezik.
Födém fa, beépítés statikai szakvélemény és megerősítés után lehetséges.
Födém szigetelés üveggyapot hőtükör fóliával.

A ház fűtését gázkonvektor biztosítja, amely gazdaságos megoldást kínál a téli hónapokra.
Lehetőség kályhával füteni a hangulatos este garantált.
Minden helyiségben infrapanel gondoskodik a megfelelő hőmérsékletről a dolgos hétköznapokban.
Melegvízet villanybojler látja el.

Villany- víz hálózatot cserélték 2024-25-ben.
Nyílászárók 2 rétegű fa nyílászárók.
Bejárati ajtót 2025-ben cserélték.
Burkolatokat 2025-ben cserélték.

Külső homlokzat kőporos vakolat-szigetelés nélkül.

Ha egy igazán különleges, meleg hangulatú otthont keresel, ahol a természet közelsége és a nyugalom mindennapos élmény, akkor ezt az ingatlat érdemes megnézned!

Amiért beleszeretsz:

-Egyedi, természetközeli hangulat ,mintha mindig nyaralnál.
-Otthonos, meleg belső terek fa jellegű kialakítással.
-Ideális méret,könnyen fenntartható, praktikus elrendezés.
-Nyugodt, csendes környezet, távol a város zajától.
-Saját kert lehetősége pihenésre, kertészkedésre vagy baráti összejövetelekre

Itt tényleg lelassul az idő: reggeli kávé az udvaron, madárcsicsergés, friss levegő -ez az otthon nemcsak egy ház, hanem életérzés.

Elhelyezkedés:
Ács nyugodt, családias részén, ahol a béke és a természet közelsége garantált, ugyanakkor a szükséges infrastruktúra is elérhető távolságon belül van.

M1 autópálya 10 perc távolságban, iskola, óvoda, boltok, gyógyszertár 2-3 km -en belül.

Ha egy olyan otthonra vágysz, ami kitűnik a megszokottak közül, és valódi meghittséget kínál, ne hagyd ki ezt a lehetőséget!

Érdeklődj bizalommal, és gyere el megnézni személyesen is!
Korompay Rita

Korompay Rita
Inserent

Rufen Sie uns mit Vertrauen

+36-20-419- Zeig!

Andere eigene Anzeigen

Immobilienbüro
GDN Immobilien Netzwerk - Völgyvidék - Etyek

Rufen Sie mich zurück

Ähnliche Immobilien