Wohnung (Panel) Verkauf Budapest XIV. bezirk - Vezér utca

Verkauf Budapest XIV. kerület Wohnung (Panel)
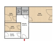
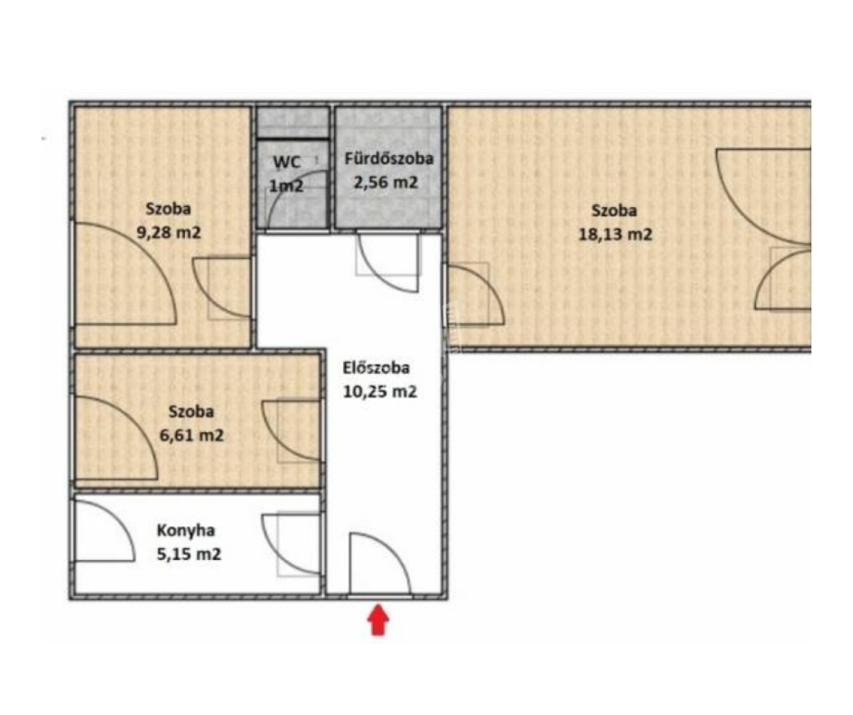
55 m2Wohnfläche 1 + 1 Zimmer
71 500 000 HUF Kaufpreis
394756ID nummer
Weitere Informationen

Straße Ansicht

Erneuert Zustand

Panel Struktur

7 m2 Balkon/terrasse

Fernheizung Heizung

voller Komfort Komfort

Auf Gemeindeflächen Parkplatz

Etage 2

Es gibt Aufzug

Gut Öffentliche Verkehrsmittel

Nein Amerikanische Küche

Es gibt nicht Zugang zum garten

1980 Baujahr

Gemeinsame Gebühren 16 750 HUF

Südosten Orientierung

Zugló egyik legjobb fogása – 2 loggiás, felújított lakás a Füredi lakótelepen

Zugló közkedvelt részén, a Füredi lakótelepen kínálok megvételre egy 55 m²-es, 2. emeleti, teljeskörűen felújított lakást, amely ritka adottságával – két külön loggiával – azonnal kitűnik a piacon.

Ez nem egy átlagos panel. Ez egy jól átgondolt, élhető otthon, ahol minden négyzetméternek funkciója van.

- Ami miatt azonnal beleszeretnek:
-2 külön loggia – extra tér, reggeli kávé, esti kikapcsolódás
-Klímás lakás – nyáron is komfort
-Nappali + külön háló – ideális pároknak, kis családnak
- Külön nyíló szobák – nincs átjárás
- Gardrób + kamra – ritka, brutál jó tárolás
- Felújítás (2017 – nem kozmetika, hanem alapoktól):
-villanyvezetékek teljes cseréje
-burkolatok és beltéri ajtók cseréje
-radiátorcsere
-áramhálózat bővítés

Magyarul: nem kell hozzányúlni, költözöl és kész.

Főbb adatok:
-55 m²
-1 + 1 fél szoba
-2 emelet
-lift + teherlift
tehermentes


Örs vezér tere ~10 perc séta
több buszjárat pár perc
boltok, éttermek, minden a közelben
óvoda, iskola, orvos – családbarát környezet

Kinek ideális?
első lakásnak
fiatal párnak
kisgyermekes családnak
befektetésnek (könnyen kiadható lokáció!)
Korompay Rita

Korompay Rita
Inserent

Rufen Sie uns mit Vertrauen

+36-20-419- Zeig!

Andere eigene Anzeigen

Immobilienbüro
GDN Immobilien Netzwerk - Völgyvidék - Etyek